Home

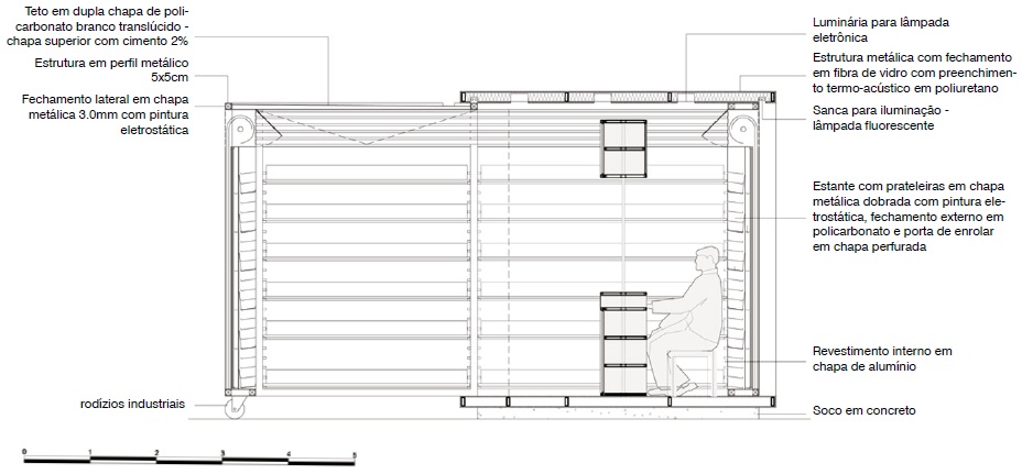
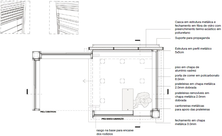
BANCA IN BOX

largo do batata, são paulo | 2012

finalista do concurso banca nova - editora abril

 

 

Home

Topo

Copyright © 2013 IN SITU Arquitetura. Todos os direitos reservados.

desenvolvido por diginect